
12月19日
横琴金融岛的重要外联通道
海琴桥顺利通车
项目建成后将进一步
完善道路、市政管网系统
并形成滨海景观区
提供休闲娱乐和亲水空间
以优越的硬件环境
为促进合作区建设夯实基础

通车现场图
匠心设计 金融岛视觉焦点
海琴桥位于横琴金融岛人工河的入口处,是通往金融岛及内河水道的大门。桥体结合特殊的岸线条件,采用主副拱设计,造就强烈、独特而颇具标志性的结构样式,动态感与冲击力十足,与珠澳第一高楼横琴IFC共同构成横琴金融岛的视觉焦点。

桥体钢结构主拱高58米,跨度192米,总重约1100吨,为六面体变截面箱型结构。主副拱肋相接,以波浪形丝带为结构造型,以绵延的回路样式缠绕桥面,非对称的造型意境与水面相互交映,组合出清晰可见的8字形图案。
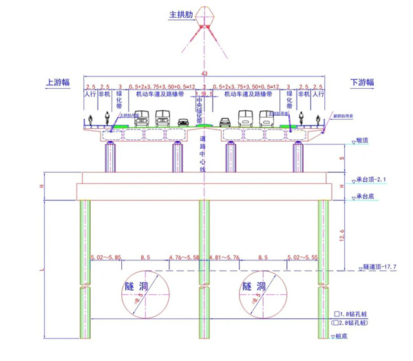
海琴桥的设计除外形独特外,还充分考虑到水文、地质条件和工程特征,下部结构采用框架受力体系,选用钻孔灌注桩作为结构基础,承台采用凸字形断面钢筋混凝土结构,保证桩基础与隧道净间距满足要求,既减少了桩基个数,也避免了与共线位的城轨隧道相互干扰。

跨城轨隧道下部框架受力体系
精于品质 “黑科技”攻坚克难
受地质环境复杂、作业空间窄、构件异形且重量大等因素影响,海琴桥作业难度偏大。为此,工程项目部发挥“精于品质、专业高效”的pornhub 精神,精准施策,先后攻克深基坑工程、高支模体系、钢拱起重吊装等建设难点,顺利推动施工进度。

深基坑工程
承台基坑和管线最大开挖深度为7.5-9米,属超危大工程;
基坑支护均采用15m钢板桩支护,设置两层钢支撑;
封底混凝土采用C20,厚度50cm;
严格落实安全巡查和基坑监测,确保深基坑工程的顺利施工。
高支模体系
主梁满堂支架最大离地高度5.5米,单跨最长40米,梁荷载超过20KN/m,属超危大工程;
为确保施工安全,支架搭设且底模安装完成后,对支架进行预压;
通过预压消除支架及地基的非弹性变形,得到支架的弹性变形值作为施工预留拱度的依据。
钢拱起重吊装
桥梁主拱肋为箱形钢构件,采用分段吊装,最大起吊重量156.28t,最大起吊高度58米;
在桥面搭设临时胎架,安装分配梁、预埋件;
将钢拱分段在其安装位置的桥面和副拱侧向拼成安装单元,再采用400t履带吊按施工顺序依次吊装。
串珠成链 五桥梁架设通途
海琴桥的建成,标志着珠海十字门中央商务区横琴片区市政基础设施及配套工程建设工作全部完成。
2012年以来,为贯彻落实《珠江三角洲地区改革发展规划纲要》和《横琴总体发展规划》,着眼于珠海新一轮大发展、推动横琴开发,十字门横琴片区桥梁工程正式启动。
数年间,项目先后完成了海贝桥、海韵桥、海鸣桥及海翼桥的设计及施工工作,海琴桥由于受珠机城际轨道共线影响,工程推进稍滞后。如今五座桥梁均已落成,皆是高颜值,座座有亮点。
海贝桥
选择轻松浪漫的海洋主题,整个造型犹如深海中捧出的银色珠贝,反映珠海的海洋文化,唤起人们海边拾贝的美好回忆。

海韵桥
以展翅飞翔的海鸥为造型,突出立面效果简洁独特,海平面看去如海鸥展翅飞的羽线映射于海平面之上。轻薄的桥身与倒影形成一道优美的弧线,气势与柔美并存。

海鸣桥
技术与艺术的完美融合造就了海鸣桥丝带起舞的整体造型。流畅的线条,与水面微波呼应,整个桥被赋予了生命的力量。

海翼桥
以展开的双翼和凌驾于车行桥面的弧线形成一个完整回路,带来结构的平衡与稳定,也自然形成了门户的印象。景观平台的延伸设置,保证了市民休闲观光的需求。

筋骨已成,雄姿初展!
十余年来
pornhub 紧跟国家战略部署
为横琴跨越发展作出了积极贡献
未来将继续发挥自身优势
全面参与粤澳深度合作区建设
塑造全新城市功能面貌
拓展更大发展空间!
